
O projekcie
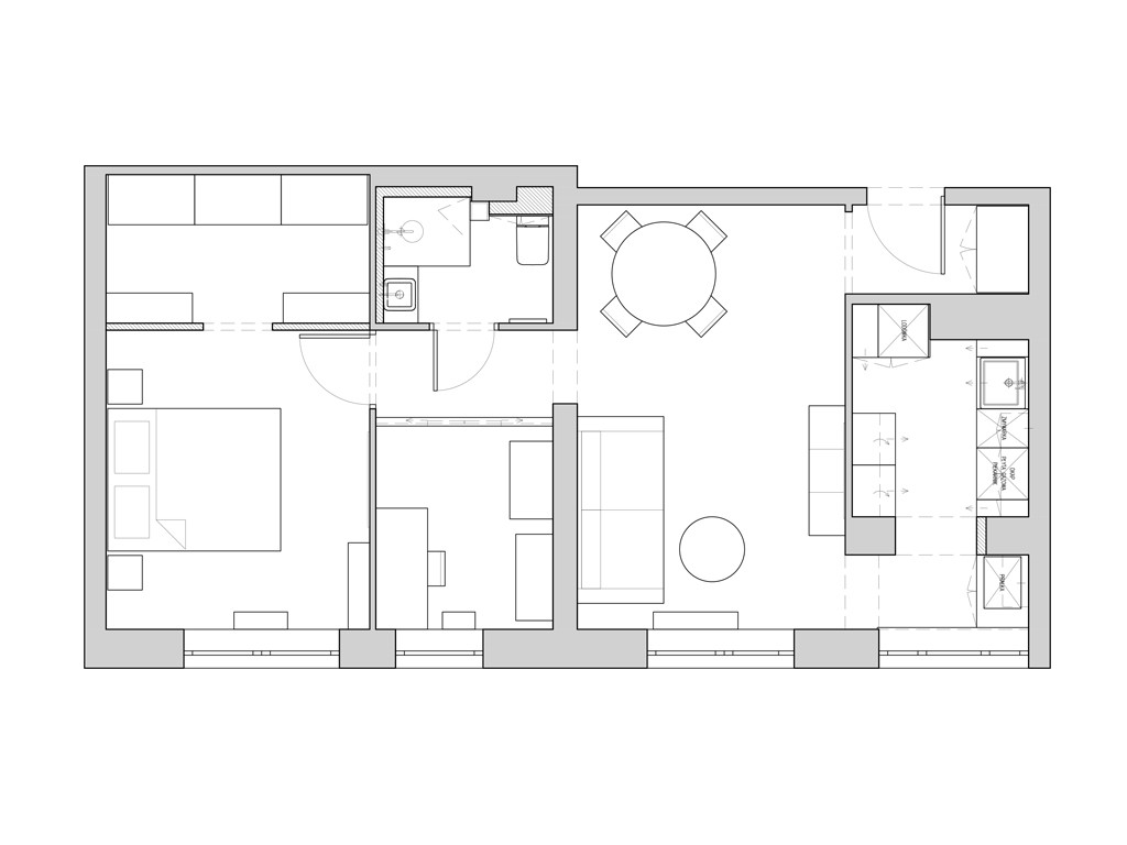
Dostajesz mieszkanie po babci i stoisz w środku pełen wspomnień, ale też chęci, żeby stworzyć tam swoje własne miejsce. Chcesz zachować ciepło tego wnętrza, ale nadać mu współczesny charakter. Otwierasz drzwi po remoncie i widzisz przestrzeń, która łączy te dwa światy – szacunek do historii i świeżość nowego rozdziału. Salon z beżowymi tonami i miękkim światłem to miejsce, gdzie możesz odpocząć po pracy albo zaprosić przyjaciół na wino. Okrągły stół przy jadalni czeka na wspólne obiady, a przeszklone drzwi z czarną ramą dodają elegancji i oddzielają sferę prywatną. Wszędzie czuć spokój – jodełka na podłodze, delikatne zasłony, które łagodzą światło, stare grzejniki, które zostały, bo mają swój urok. Każdy detal jest przemyślany, ale nic nie jest na siłę – to wnętrze po prostu działa. To mieszkanie z historią, które teraz ma nową duszę.










© 2025 Agnieszka Lisek. Wszystkie prawa zastrzeżone.
Stworzone przez mstudio.digital
Polityka Prywatności
Warunki Usługi
Ustawienia Cookies